Katalog projekata kuća
Katalog projekata samogrejnih kuća sa primerima idejnih rešenja jednoporodičnih stambenih objekata i prikazima osnova prizemnih i spratnih kuća (raspored prostorija, funkcionalnost, kvadratura) u kategorijama malih objekata do 50m2, klasičnih stambenih kuća od 50-100m2 i većih stambenih rezidencija preko 100m2.
Svi dole prikazani planovi kuća su samo primeri mogućih idejnih rešenja samogrejnih kuća i moguće je iste modifikovati i prilagođavati u skladu sa željama budućih stanara i investitora. Ako želite da za Vaš novi topli dom sagradite jednu od samogrejnih kuća, molimo Vas pogledajte našu Ponudu ili nam pošaljite Vaš specifikovani Zahtev za izgradnju.
Prizemni objekti
do 50m2
projekat br. 1
Samogrejna eko-kuća :: prizemni stambeni objekat 30m2 - osnova prizemlja
osnova prizemlja |
prizemni stambeni objekat - 30m2
preuzmite plan 
šifra projekta: SEK - P1 - 30m2
Niskoenergetska kuća - pasivna solarna gradnja - mali stambeni objekat: kuća, vikendica, letnja kuća...
Tehničke karakteristike
tip: stambeni objekat
spratnost: prizemni - P
kvadratura (neto): 30 m2
kvadratura (bruto): 36,85 m2
broj soba: 1
|
| |
| Prostorije |
| |
naziv |
m2 |
| 1. |
Ulaz |
4,17 |
| 2. |
Kupatilo |
3,27 |
| 3. |
Ostava |
2,54 |
| 4. |
Kuhinja sa trpezarijom
i dnevnim boravkom |
19,89 |
|
|
Ukupna korisna površina |
30,00 |
Ukupna bruto površina |
36,85 |
|
projekat br. 2
Samogrejna eko-kuća :: prizemni stambeni objekat 50m2 - osnova prizemlja
osnova prizemlja |
prizemni stambeni objekat - 50m2
preuzmite plan 
šifra projekta: SEK - P2 - 50m2
Niskoenergetska kuća - pasivna solarna gradnja - mali stambeni objekat: kuća, vikendica, letnja kuća...
Tehničke karakteristike
tip: stambeni objekat
spratnost: prizemni - P
kvadratura (neto): 50 m2
kvadratura (bruto): 60,50 m2
broj soba: 2
|
| |
| |
| Prostorije |
| |
naziv |
m2 |
| 1. |
Ulaz |
4,43 |
| 2. |
Kupatilo |
3,02 |
| 3. |
Ostava |
2,54 |
| 4. |
Kuhinja sa trpezarijom
i dnevnim boravkom |
21,39 |
| 5. |
Spavaća soba |
18,75 |
|
|
Ukupna korisna površina |
50,00 |
Ukupna bruto površina |
60,50 |
|
od 50-100m2
projekat br. 3
Samogrejna eko-kuća :: prizemni stambeni objekat 75m2 - osnova prizemlja
osnova prizemlja |
prizemni stambeni objekat - 75m2
preuzmite plan 
šifra projekta: SEK - P3 - 75m2
Niskoenergetska kuća - pasivna solarna gradnja - stambeni objekat: kuća, vikendica, letnja kuća...
Tehničke karakteristike
tip: stambeni objekat
spratnost: prizemni - P
kvadratura (neto): 75 m2
kvadratura (bruto): 89,10 m2
broj soba: 3
|
| |
| |
| Prostorije |
| |
naziv |
|
| 1. |
Ulaz |
5,42 |
| 2. |
WC |
1,42 |
| 3. |
Kuhinja sa trpezarijom
i dnevnim boravkom |
26,82 |
| 4. |
Hodnik sa garderoberom |
9,72 |
| 5. |
Spavaća soba |
10,74 |
| 6. |
Kupatilo |
4,82 |
| 7. |
Spavaća soba |
15,59 |
|
|
Ukupna korisna površina |
75,00 |
Ukupna bruto površina |
89,10 |
|
projekat br. 4
Samogrejna eko-kuća :: prizemni stambeni objekat 90m2 - osnova prizemlja
osnova prizemlja |
prizemni stambeni objekat - 90m2
preuzmite plan 
šifra projekta: SEK - P4 - 90m2
Niskoenergetska kuća - pasivna solarna gradnja - stambeni objekat: kuća, vikendica, letnja kuća...
Tehničke karakteristike
tip: stambeni objekat
spratnost: prizemni - P
kvadratura (neto): 90 m2
kvadratura (bruto): 107,25 m2
broj soba: 3
|
| |
| |
| Prostorije |
| |
naziv |
|
| 1. |
Ulaz |
5,81 |
| 2. |
WC |
1,42 |
| 3. |
Kuhinja sa trpezarijom
i dnevnim boravkom |
33,47 |
| 4. |
Ostava |
2,06 |
| 5. |
Hodnik sa garderoberom |
12,13 |
| 6. |
Spavaća soba |
17,80 |
| 7. |
Sauna |
1,82 |
| 8. |
Kupatilo |
4,81 |
| 9. |
Spavaća soba |
10,76 |
|
|
Ukupna korisna površina |
90,00 |
Ukupna bruto površina |
107,25 |
|
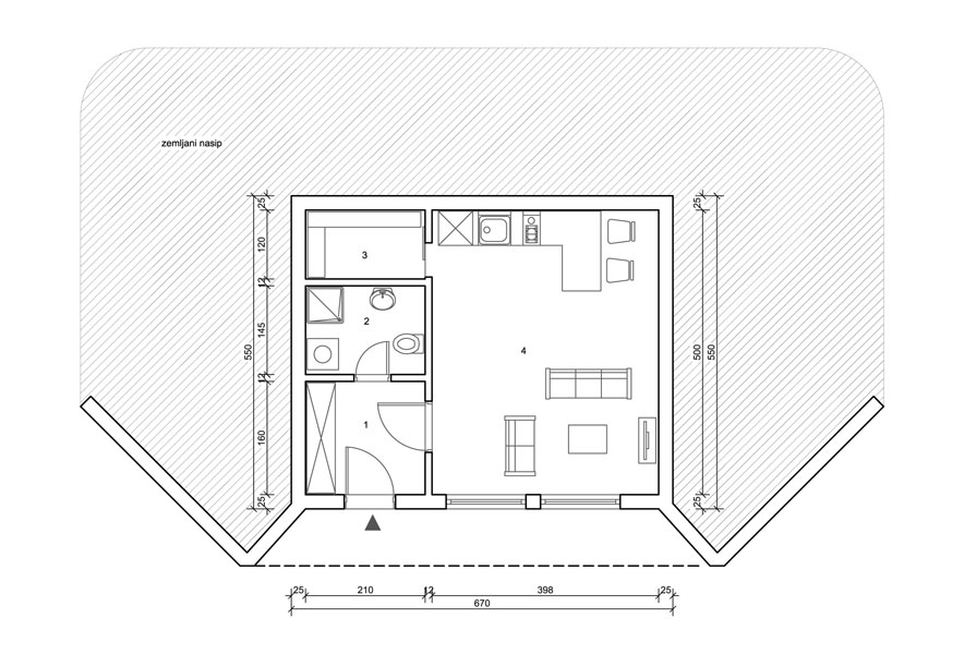
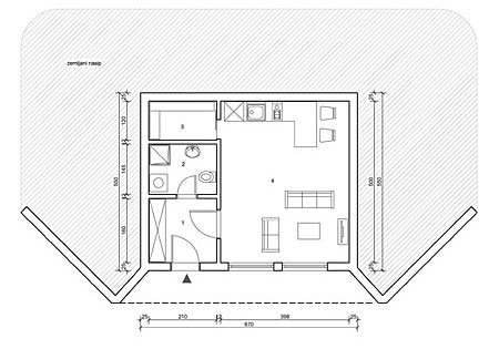
projekat br. 5
Samogrejna eko-kuća :: prizemni stambeni objekat 100m2 - osnova prizemlja
osnova prizemlja |
prizemni stambeni objekat - 100m2
preuzmite plan 
šifra projekta: SEK - P5 - 100m2
Niskoenergetska kuća - pasivna solarna gradnja - stambeni objekat: kuća, vikendica, letnja kuća...
Tehničke karakteristike
tip: stambeni objekat
spratnost: prizemni - P
kvadratura (neto): 100 m2
kvadratura (bruto): 119,35 m2
broj soba: 3
|
| |
| |
| Prostorije |
| |
naziv |
|
| 1. |
Ulaz |
5,75 |
| 2. |
WC |
1,23 |
| 3. |
Dnevni boravak |
21,68 |
| 4. |
Ostava |
1,54 |
| 5. |
Kuhinja sa trpezarijom |
16,80 |
| 6. |
Vešernica |
2,23 |
| 7. |
Hodnik |
8,84 |
| 8. |
Garderober |
4,05 |
| 9. |
Sauna |
2,62 |
| 10. |
Kupatilo |
5,62 |
| 11. |
Spavaća soba |
11,64 |
| 12. |
Spavaća soba |
18,00 |
|
|
Ukupna korisna površina |
100,00 |
Ukupna bruto površina |
119,35 |
|
projekat br. 6
Samogrejna eko-kuća :: prizemni stambeni objekat 100m2 - osnova prizemlja
osnova prizemlja |
prizemni stambeni objekat - 100m2
preuzmite plan 
šifra projekta: SEK - P6 - 100m2
Niskoenergetska kuća - pasivna solarna gradnja - stambeni objekat: kuća, vikendica, letnja kuća...
Tehničke karakteristike
tip: stambeni objekat
spratnost: prizemni - P
kvadratura (neto): 100 m2
kvadratura (bruto): 119,35 m2
broj soba: 4
|
| |
| |
| Prostorije |
| |
naziv |
|
| 1. |
Ulaz |
5,75 |
| 2. |
WC |
1,23 |
| 3. |
Dnevni boravak |
17,45 |
| 4. |
Ostava |
1,54 |
| 5. |
Kuhinja sa trpezarijom |
16,80 |
| 6. |
Vešernica |
2,23 |
| 7. |
Hodnik |
9,87 |
| 8. |
Spavaća soba |
10,52 |
| 9. |
Kupatilo |
5,62 |
| 10. |
Spavaća soba |
11,64 |
| 11. |
Spavaća soba |
17,03 |
|
|
Ukupna korisna površina |
100,00 |
Ukupna bruto površina |
119,35 |
|
Spratni objekti
preko 100m2
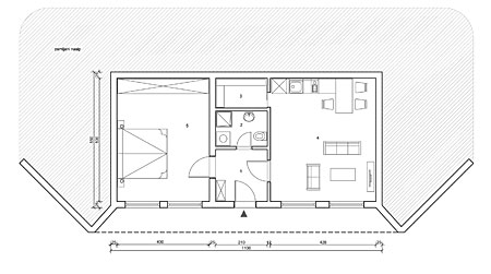
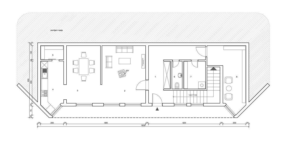
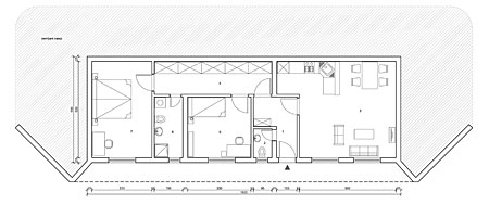
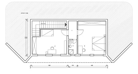
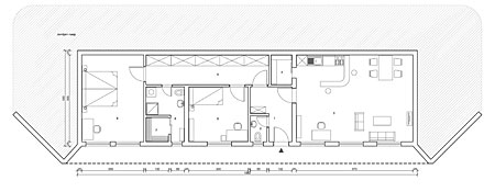
projekat br. 7
Samogrejna eko-kuća :: spratni stambeni objekat 125m2 - osnova prizemlja
osnova prizemlja |
spratni stambeni objekat - 125m2
preuzmite plan 
šifra projekta: SEK - S1 - 125m2
Niskoenergetska kuća - pasivna solarna gradnja - veći stambeni objekat: kuća, vikendica, letnja kuća...
Tehničke karakteristike
tip: stambeni objekat
spratnost: spratni - P + 1
kvadratura (neto): 125 m2
kvadratura (bruto): 153,75 m2
broj soba: 4
|
| |
Samogrejna eko-kuća :: spratni stambeni objekat 125m2 - osnova sprata
osnova sprata |
| Prostorije - prizemlje |
| |
naziv |
|
| 1. |
Ulaz |
5,72 |
| 2. |
Dnevni boravak |
18,63 |
| 3. |
Biblioteka - atelje |
10,97 |
| 4. |
WC |
1,62 |
| 5. |
Trpezarija |
19,75 |
| 6. |
Kuhinja |
8,94 |
| 7. |
Ostava |
2,38 |
| |
Stepenišni prostor |
7,11 |
|
|
Ukupna korisna površina |
75,00 |
Ukupna bruto površina |
90,50 |
| Prostorije - sprat |
| |
naziv |
|
| 1. |
Hodnik |
3,48 |
| 2. |
Spavaća soba |
18,04 |
| 3. |
Kupatilo |
2,72 |
| 4. |
Spavaća soba |
20,95 |
|
Stepenišni prostor |
7,11 |
|
|
Ukupna korisna površina |
50,00 |
Ukupna bruto površina |
63,25 |
|
| |
| |
projekat br. 8
Samogrejna eko-kuća :: spratni stambeni objekat 145m2 - osnova prizemlja
osnova prizemlja |
spratni stambeni objekat - 145m2
preuzmite plan 
šifra projekta: SEK - S2 - 145m2
Niskoenergetska kuća - pasivna solarna gradnja - veći stambeni objekat: kuća, vikendica, letnja kuća...
Tehničke karakteristike
tip: stambeni objekat
spratnost: spratni - P + 1
kvadratura (neto): 145 m2
kvadratura (bruto): 179 m2
broj soba: 4
|
| |
Samogrejna eko-kuća :: spratni stambeni objekat 145m2 - osnova sprata
osnova sprata |
| Prostorije - prizemlje |
| |
naziv |
|
| 1. |
Ulaz - hodnik |
13,06 |
| 2. |
Dnevni boravak |
19,18 |
| 3. |
Trpezarija |
15,05 |
| 4. |
Kuhinja |
8,30 |
| 5. |
Ostava |
2,43 |
| 6. |
WC |
2,16 |
| 7. |
Vešernica |
4,59 |
| 8. |
Biblioteka - atelje |
13,34 |
| |
Stepenišni prostor |
7,11 |
|
|
Ukupna korisna površina |
85,00 |
Ukupna bruto površina |
103,00 |
| Prostorije - sprat |
| |
naziv |
|
| 1. |
Hodnik |
12,39 |
| 2. |
Kupatilo |
7,48 |
| 3. |
Sauna |
3,83 |
| 4. |
Garderober |
2,59 |
| 5. |
Spavaća soba |
12,10 |
| 6. |
Spavaća soba |
17,21 |
|
Stepenišni prostor |
7,11 |
|
|
Ukupna korisna površina |
60,00 |
Ukupna bruto površina |
76,00 |
|
| |
| |
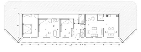
projekat br. 9
Samogrejna eko-kuća :: spratni stambeni objekat 175m2 - osnova prizemlja
osnova prizemlja |
spratni stambeni objekat - 175m2
preuzmite plan 
šifra projekta: SEK - S3 - 175m2
Niskoenergetska kuća - pasivna solarna gradnja - veći stambeni objekat: luksuzna vila, ekskluzivna stambena rezidencija...
Tehničke karakteristike
tip: stambeni objekat
spratnost: spratni - P + 1
kvadratura (neto): 175 m2
kvadratura (bruto): 212,40 m2
broj soba: 5
|
| |
Samogrejna eko-kuća :: spratni stambeni objekat 175m2 - osnova sprata
osnova sprata |
| Prostorije - prizemlje |
| |
naziv |
|
| 1. |
Ulaz - hodnik |
11,64 |
| 2. |
Dnevni boravak |
33,91 |
| 3. |
Trpezarija |
16,39 |
| 4. |
Kuhinja |
8,30 |
| 5. |
Ostava |
2,43 |
| 6. |
WC |
2,16 |
| 7. |
Vešernica |
3,20 |
| 8. |
Biblioteka - atelje |
13,34 |
| |
Stepenišni prostor |
7,11 |
|
|
Ukupna korisna površina |
100,00 |
Ukupna bruto površina |
120,00 |
| Prostorije - sprat |
| |
naziv |
|
| 1. |
Hodnik |
15,79 |
| 2. |
Kupatilo |
7,03 |
| 3. |
Sauna |
4,73 |
| 4. |
Spavaća soba |
12,21 |
| 5. |
Spavaća soba |
12,21 |
| 6. |
Spavaća soba |
17,47 |
|
Stepenišni prostor |
7,11 |
|
|
Ukupna korisna površina |
75,00 |
Ukupna bruto površina |
92,40 |
|
| |
| |
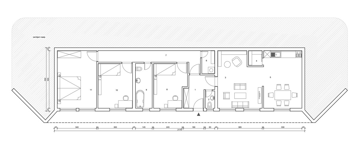
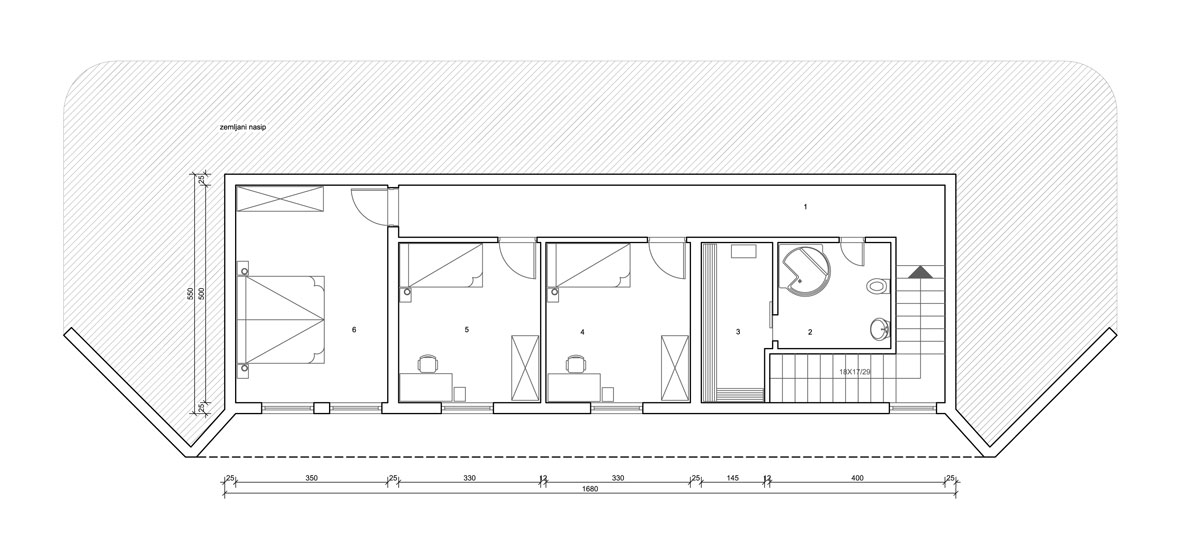
projekat br. 10
Samogrejna eko-kuća :: spratni stambeni objekat 225m2 - osnova prizemlja
osnova prizemlja |
spratni stambeni objekat - 225m2
preuzmite plan 
šifra projekta: SEK - S4 - 225m2
Niskoenergetska kuća - pasivna solarna gradnja - veći stambeni objekat: luksuzna vila, ekskluzivna stambena rezidencija sa saunom i unutrašnjim bazenom...
Tehničke karakteristike
tip: stambeni objekat
spratnost: spratni - P + 1
kvadratura (neto): 225 m2
kvadratura (bruto): 269 m2
broj soba: 5
|
| |
Samogrejna eko-kuća :: spratni stambeni objekat 225m2 - osnova sprata
osnova sprata |
| Prostorije - prizemlje |
| |
naziv |
|
| 1. |
Ulaz - hodnik |
11,64 |
| 2. |
Dnevni boravak |
33,91 |
| 3. |
Trpezarija |
16,39 |
| 4. |
Kuhinja |
8,30 |
| 5. |
Ostava |
2,43 |
| 6. |
WC |
2,16 |
| 7. |
Vešernica |
3,20 |
| 8. |
Bazen |
38,71 |
| |
Stepenišni prostor |
7,11 |
|
|
Ukupna korisna površina |
125,00 |
Ukupna bruto površina |
148,00 |
| Prostorije - sprat |
| |
naziv |
|
| 1. |
Hodnik |
15,79 |
| 2. |
Kupatilo |
6,97 |
| 3. |
Sauna |
4,73 |
| 4. |
Spavaća soba |
12,22 |
| 5. |
Spavaća soba |
12,22 |
| 6. |
Spavaća soba |
17,34 |
| 7. |
Spavaća soba |
24,62 |
|
Stepenišni prostor |
7,11 |
|
|
Ukupna korisna površina |
100,00 |
Ukupna bruto površina |
121,00 |
|
| |
| |